Zum Hauptinhalt springen
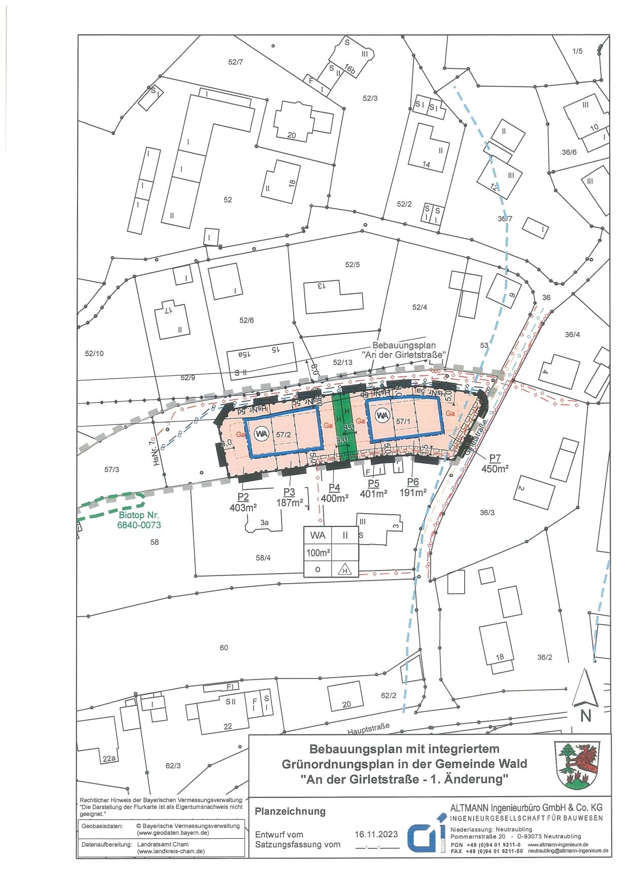
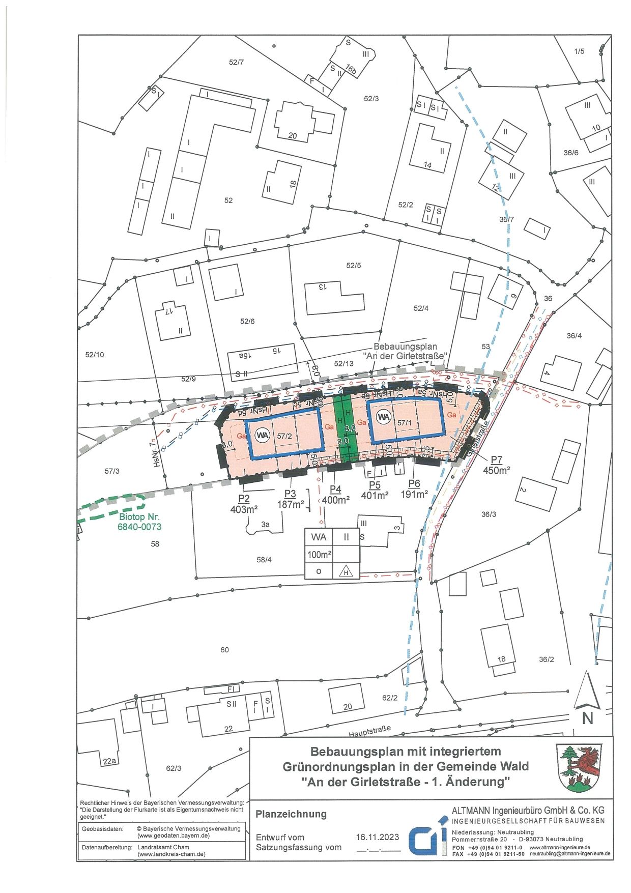
Neubau von 6 Reihenhäusern

Girletstraße in 93192 Wald

Neubau von 6 Reihenhäusern

  • Baubeginn: 2025
  • Baufertigstellung: 2026
  • Lage: zentral, sonnige und ruhige Lage
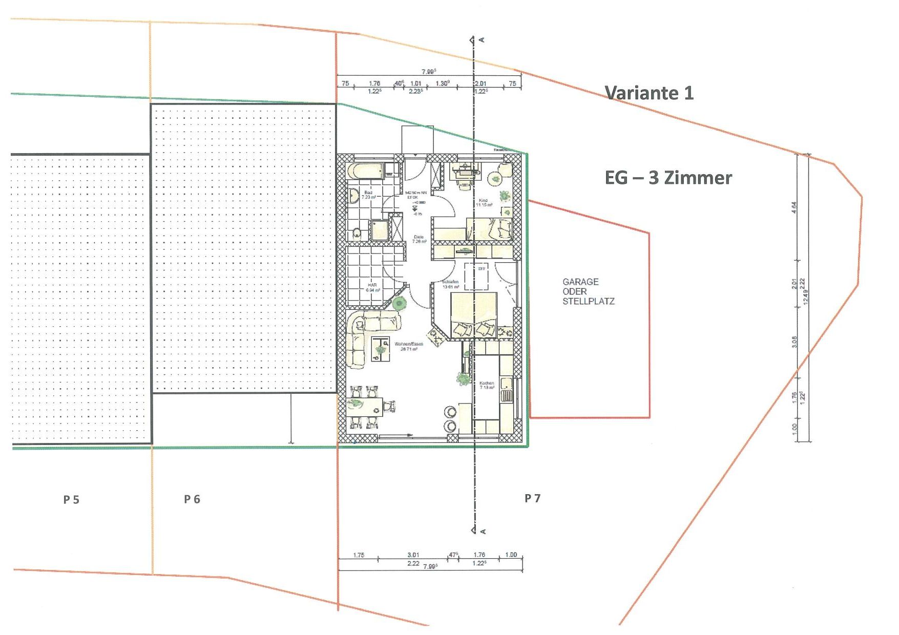
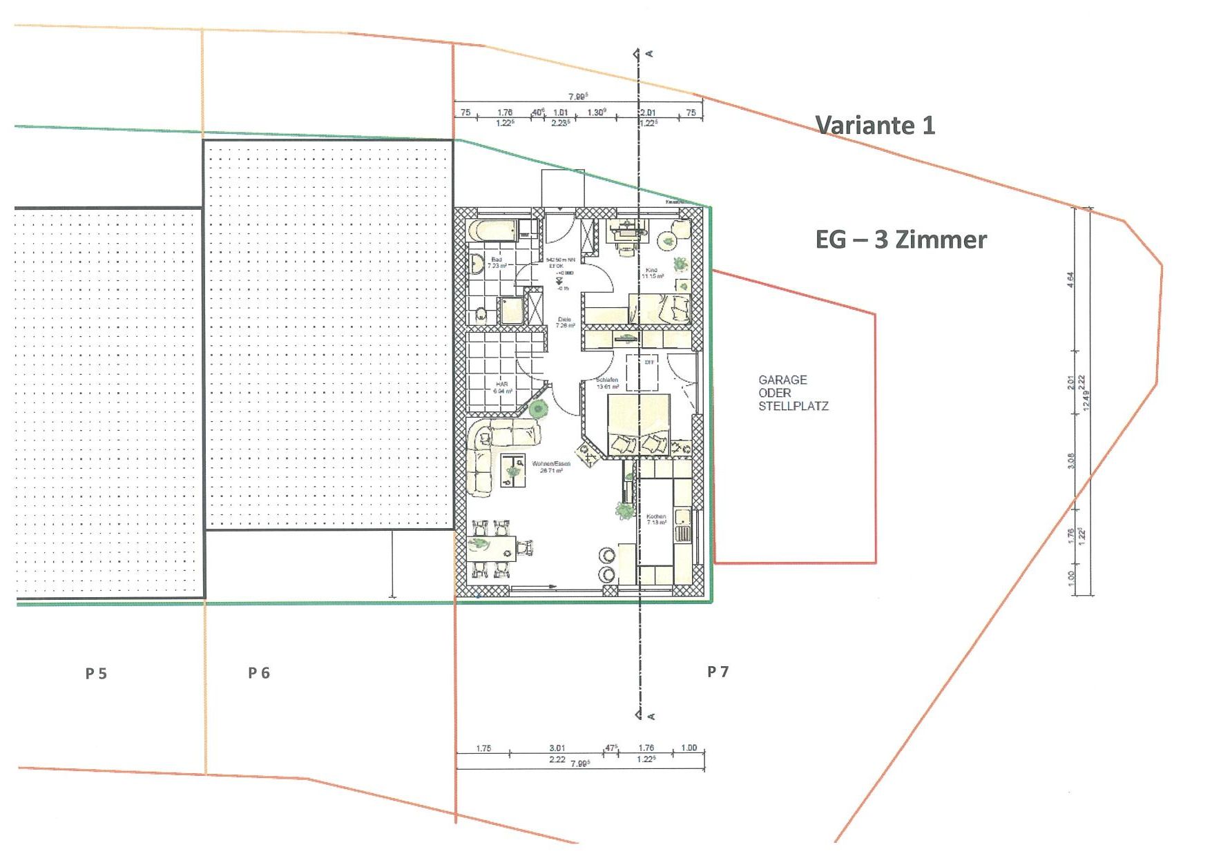
    Bebauung: Bungalow EG mit abgesetztem Pultdach ideal für Photovoltaikanlage
    nach GEG 2024

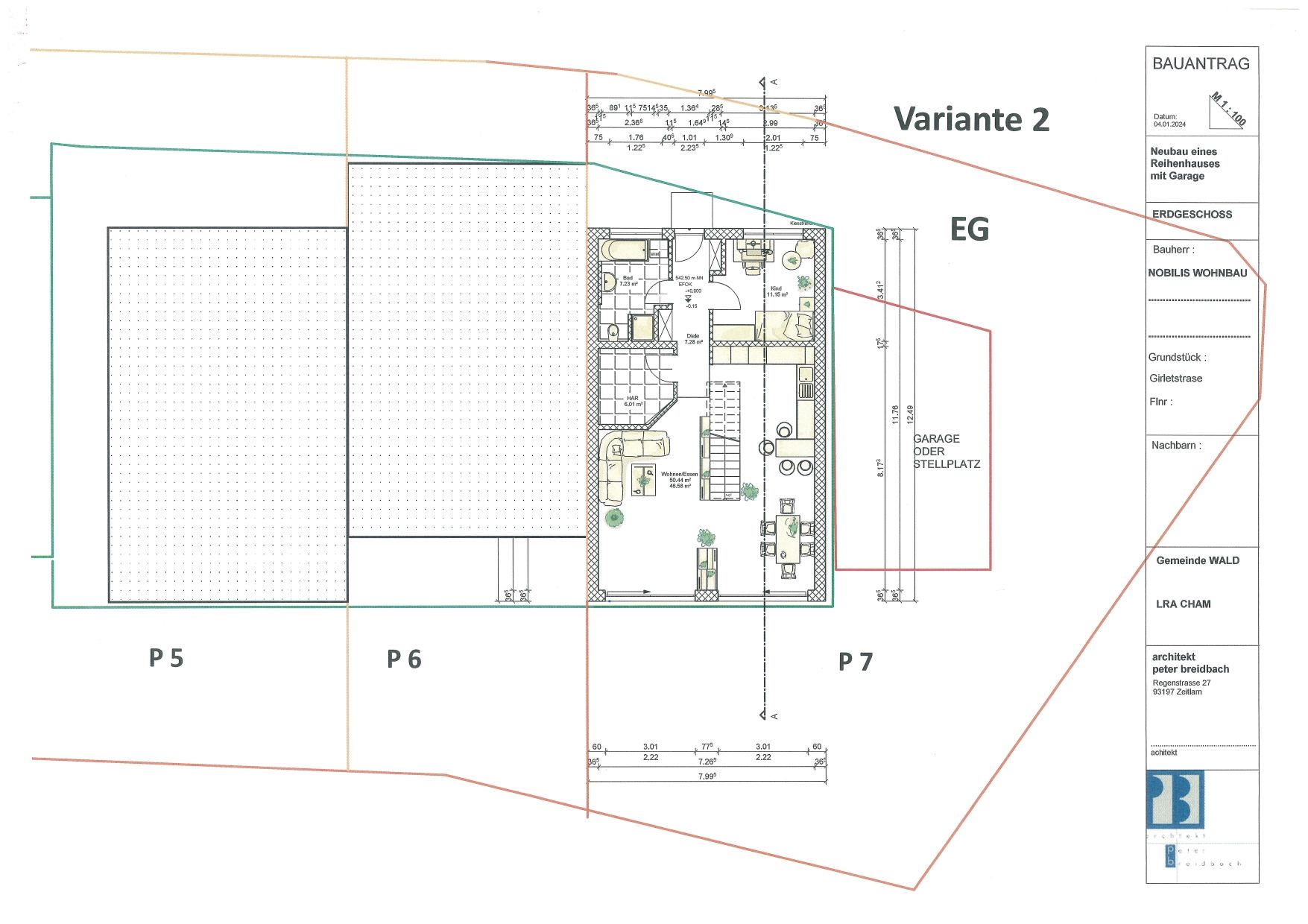
    Verfügbare Grundstücke: Variante 1 : Bungalow mit EG - mit 3–Zimmer oder mit 4–Zimmer
    Parzelle Nr
    Grund ca.
    Wohnfläche inkl. Terrassenanteil ca
    Verkaufspreis
    Verfügbarkeit
    2 403 m² 93,00 m² 426.900 € frei
    3 187 m² 93,00 m² 339.900 € frei
    4 400 m² 93,00 m² 389.900 € frei
    5 401 m² 93,00 m² 399.900 € frei
    6 191 m² 93,00 m² 340.900 € frei
    7 450 m² 93,00 m² 389.900 € frei

     

    Verfügbare Grundstücke: Variante 2 : Reihenhaus EG und DG
    Parzelle Nr
    Grund ca.
    Wohnfläche inkl. Terrassenanteil ca
    Verkaufspreis
    Verfügbarkeit
    2 403 m² 133,00 m² 501.900 € frei
    3 187 m² 133,00 m² 414.900 € frei
    4 400 m² 133,00 m² 464.900 € frei
    5 401 m² 133,00 m² 474.900 € frei
    6 191 m² 133,00 m² 415.900 € frei
    7 450 m² 133,00 m² 464.900 € frei

     

    Im Kaufpreis enthalten:

    • Grundstück voll erschlossen
    • Variante 1 : Haus schlüsselfertig ; Ausführung als Drei – oder Vierzimmer – Bungalow , inkl. Speicher mit Schubtreppe
    • Variante 2 : Haus schlüsselfertig ; Ausführung als Reihenhaus EG und DG , inkl. Speicher
    • Abfuhr von überschüssiger Erde
    • Grobplanie
    • Hausanschlusskosten (Strom, Wasser, Kanal, Telekom)
    • Erstmalige Erschließungskosten

    Im Hauskaufpreis nicht enthalten:

    • Gärtnerische Anlage / Humusierung auf eigenem Hausgrundstück
    • Gebäudeeinmessung
    • Komplette Aussenanlage , Stellplatz – oder Garagenanlage
    • Terrasse
    • Teilungsmessung

    Mögliche Zusatzleistungen:

    Preis pro Stellplatz  3.500,00 €
    Preis pro Fertiggarage 12.000,00 €

    Ausbaustand schlüsselfertig:

    • Ziegelhaus
    • Bodenbeläge als Fliesen und Parkett
    • Sichtdachstuhl
    • Fußbodenheizung
    • Wärmepumpe
    • bedarfsgeführte Lüftungsanlage

    Baulich erlaubte mögliche Zusätze, nicht im Kaufpreis enthalten

    • Garagen und zulässige Abstellräume bis zu einer Grundfläche von 54,00 m² möglich
    • Nebenanlagen bis zu einer Grundfläche von max. 20,00 m² und einem Bruttorauminhalt von max. 50,000 m² beliebig auf dem jeweiligen Grundstück erstellbar

    Eigenleistungen möglich.
    Änderungen, Irrtümer und Druckfehler bleiben vorbehalten

    Stand: 04.11.2024