Zum Hauptinhalt springen
Neubau von 4 Doppelhaushälften in Seedorf

Seedorf
KfW 55 ( KfW förderungsfähig 100.000 € )

Neubau von 4 Doppelhaushälften in Seedorf

  • Baubeginn: 2026
  • Baufertigstellung: 2027
  • Einheiten: UG und EG
  • in Seedorf
    • Lage: ruhige, sonnige Lage im Grünen
    • Baubeginn: 2026
    • Baufertigstellung: 2027
    • Bebauung: UG und EG
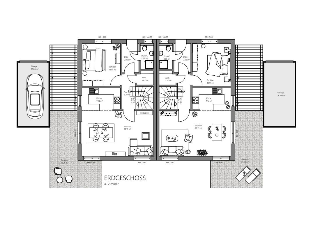
    • Das Haus kann in einer 4 – Zimmer oder in einer 5 – Zimmer – Variante erstellt werden
    Nr.
    Grund-stücks-größe
    zzgl. Straßenanteil (Privatstraße)
    Zimmer
    Wohn-fläche
    Wohn-Nutzfläche
    Verkaufs-
    preis
    Vefügbar-
    keit
    1 ca. 327 m² ca. 79 m² 4 oder 5 ca. 116 m² ca. 132 m² 589.900 € frei
    2 ca. 327 m² ca. 79 m² 4 oder 5 ca. 116 m² ca. 132 m² 569.900 € frei
    3 ca. 345 m² ca. 79 m² 4 oder 5 ca. 116 m² ca. 132 m² 575.900 € frei
    4 ca. 307 m² ca. 79 m² 4 oder 5 ca. 116 m² ca. 132 m² 559.900 € frei
     

    Kaufpreis Garage : 15.000 €

    Im Kaufpreis enthalten:

    • Grundstück voll erschlossen
    • Abfuhr von überschüssiger Erde
    • Hausanschlusskosten ( Strom , Wasser , Kanal , Telekom )
    • Erstmalige Erschließungskosten
    • gepflasterte Terrasse und Eingangspodest
    • Hofzufahrt und Zugang zum Haus mit Betonrandsteinen eingefasst und mit Granit geschotter
    • 2 Stellplätze mit Betonrandsteinen eingefasst und mit Granit geschottert

    Im kaufpreis nicht enthalten:

    • Gärtnerische Anlage
    • Humusierung auf eigenem Hausgrundstück
    • Gebäudeeinmessung
    • Teilungsmessung
    • Einfriedung ( Zaun )
    • Garage
    • Carport

    Ausbaustand schlüsselfertig:

    • Stahlbetonkeller mit Wärmedämmung
    • Kellergeschoß mit Wohnraumhöhe
    • EG in Ziegelbau
    • Bodenbeläge als Fliesen und Parkett
    • Sichtdachstuhl
    • freitragende Holztreppe
    • Fußbodenheizung
    • Wärmepumpe
    • Bedarfsgeführte Lüftungsanlage

    Eigenleistungen möglich.


    Änderungen, Irrtümer und Druckfehler bleiben vorbehalten

    Stand: 22.04.2026

    4 Zimmer – Variante

    5 – Zimmer – Variante