
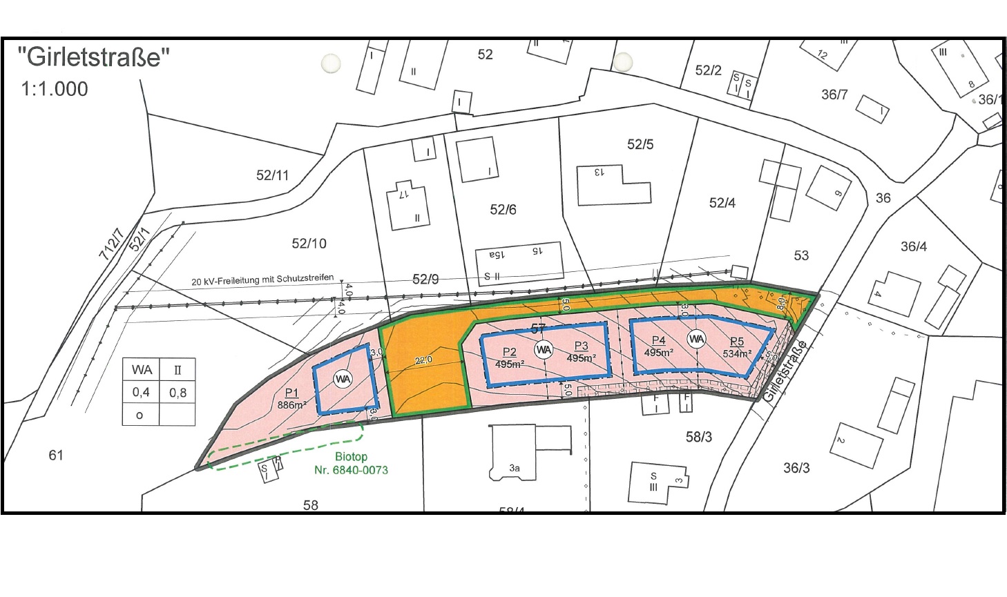
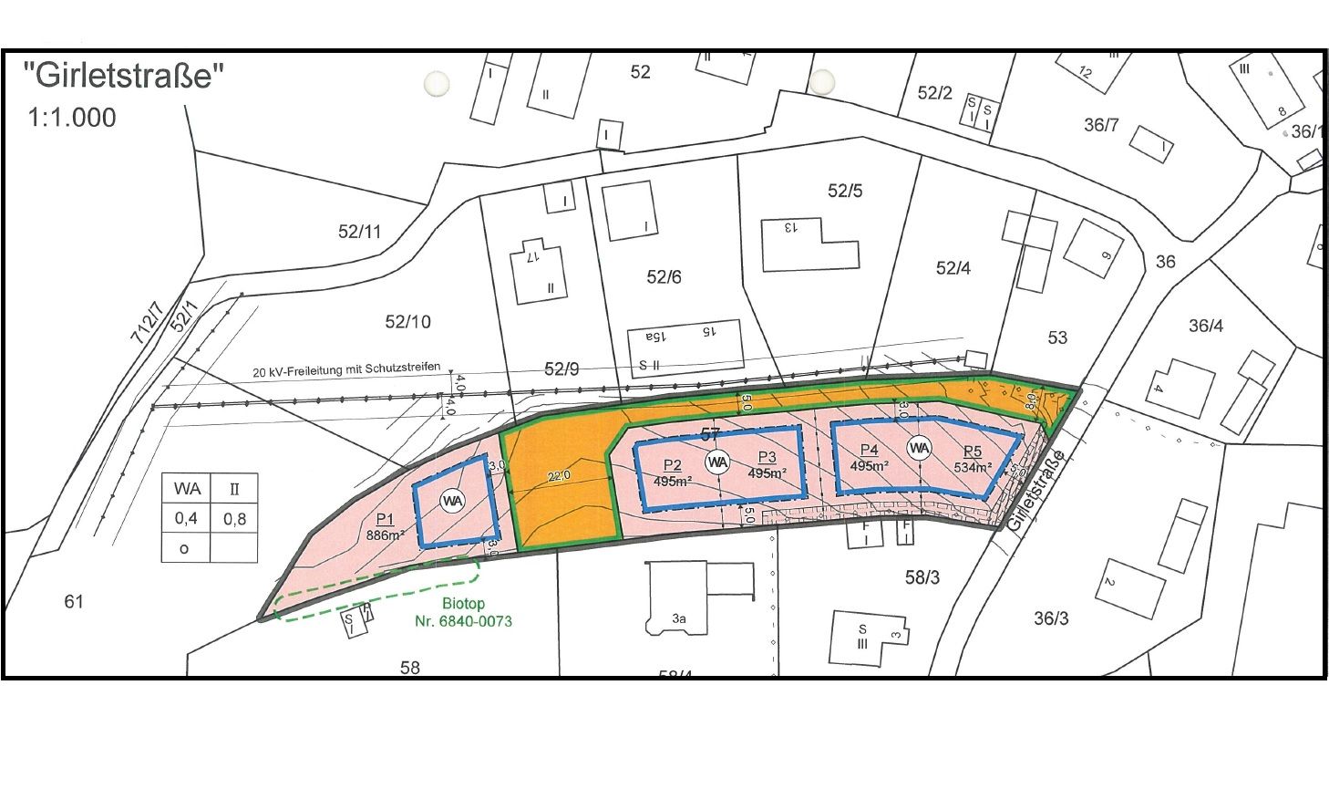
Girletstraße in Wald: Grundstück am Biotop,
- Bebauung mit EFH oder Bungalow möglich
- Bereits erschlossen
- Absolut ruhige Naturlage
- Am Nachbarsgrundstück befindet sich ein See
- Zentrumsnah
- fußläufig sind Schulen, Kita, das Rathaus und verschiedene Einkaufsmöglichkeiten erreichbar
- Verhandlungsbasis: 230.360,00 €
- Grundstücksgröße ca. 886 m² zzgl. Straßenanteil.
Änderungen, Irrtümer und Druckfehler bleiben vorbehalten!
Stand: 23.09.2022