Zum Hauptinhalt springen
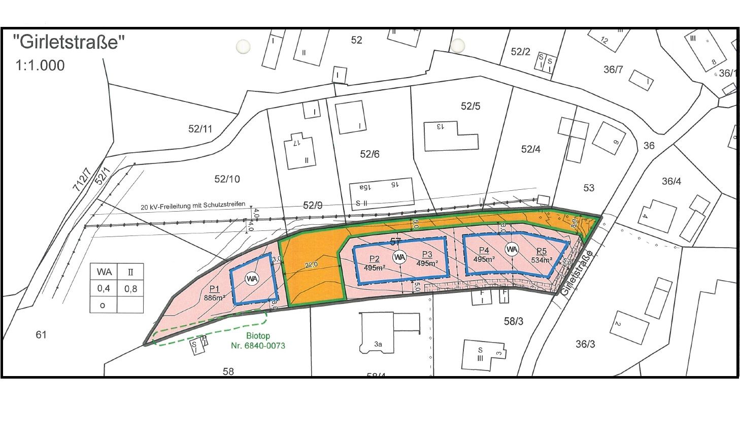
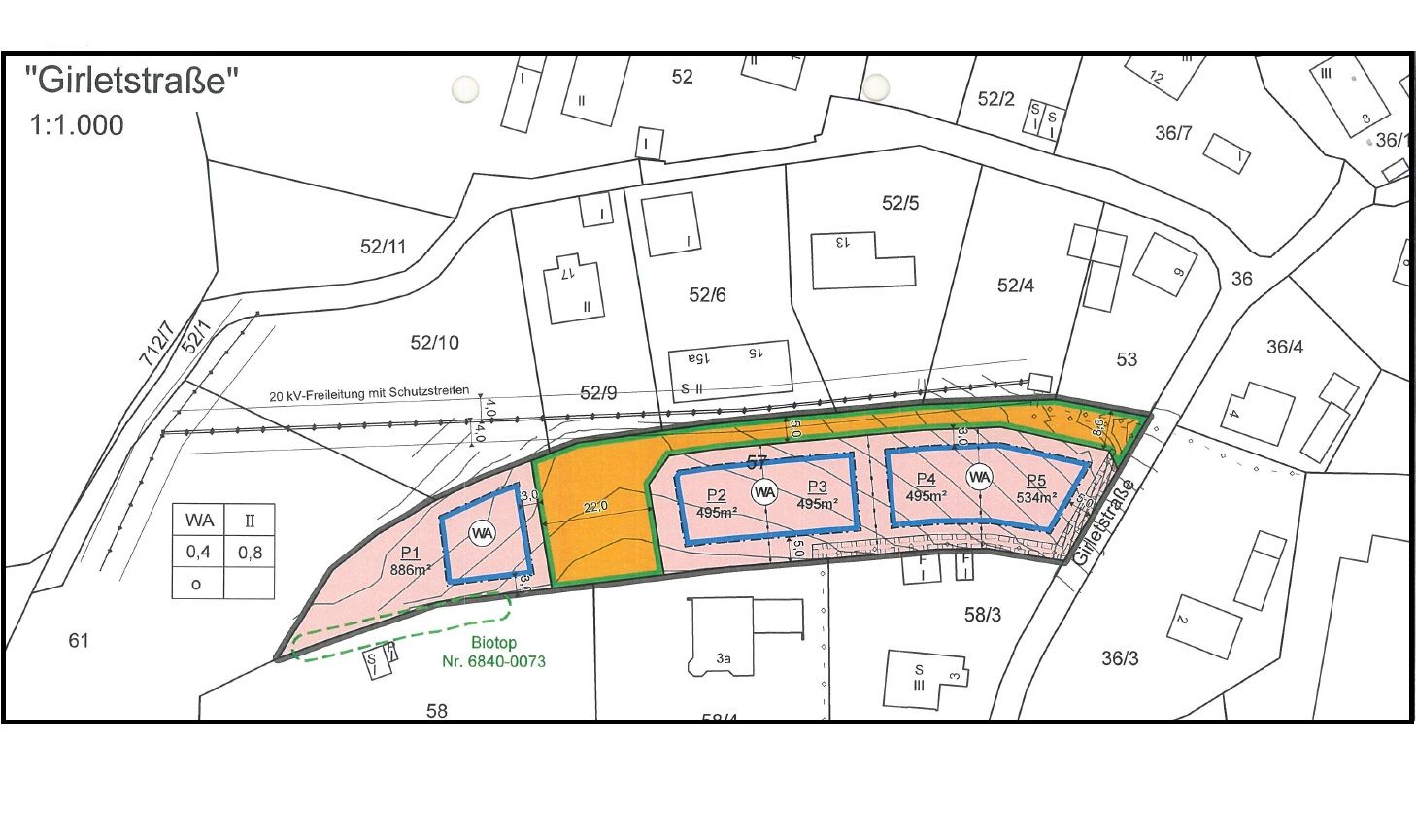
Traumhaftes Baugrundstück

Wald

Traumhaftes Baugrundstück

  • Einheiten: 495 m²
  • Traumhaftes Baugrundstück in zentraler und dennoch ruhiger Lage

    Lage:
    Die Lage ist vor allem sonnig, ruhig und dennoch absolut zentral im Ort Wald. Fußläufig sind das Rathaus, Schulen, Kita sowie verschiedene Geschäfte erreichbar.

    Die Gemeinde Wald liegt zwischen der Gemeinde Falkenstein und Nittenau und kann unter anderem über die B16 erreicht werden. In ca. 20 Minuten Autofahrt ist der Ort Neutraubling oder Roding zu erreichen.

    Das Grundstück ist voll erschlossen Erschließungsumfang: Strom, Telekommunikation, Wasser Die Erschließungsarbeiten wurden im Sommer 2022 abgeschlossen. Die Zufahrtstraße ist geteert.

    Ein Bebauungsplan ist vorhaben. Das Grundstück ist mit einer DHH ( EG und OG) oder einem Doppelhausbungalow (EG) bebaubar.

    • Preis: auf Anfrage
    • Größe: 495 m²


    Änderungen, Irrtümer und Druckfehler bleiben vorbehalten!

    Stand: 25.11.2022