Zum Hauptinhalt springen
8 Eigentumswohnungen mit Aufzug in Lorenzen

Höhe: Kallmünzer Str. 14

8 Eigentumswohnungen mit Aufzug in Lorenzen

  • Baubeginn: 2024
  • Baufertigstellung: 2025 / 2026
  • Einheiten: 8
  • In Mitten von Lorenzen entsteht ein Mehrfamilienhaus mit 8 Eigentumswohnungen und Aufzug. In unmittelbarer Nähe liegt eine Bushaltestelle der Buslinie 13 für Schulfahrten in die Stadt oder zum nahe gelegenen Ort Hainsacker. In wenigen Minuten Autofahrt erreichen Sie die Orte Pielmühle und Lappersdorf mit zahlreichen Einkaufsmöglichkeiten sowie die Auffahrten zur A 93 und B16. Auch die Beerenmeile ist in wenigen Minuten Fußweg zu erreichen.

    Bebauung: KG+EG+1.OG+DG
    Aktueller Stand: Baugenehmigung erteilt
    Dachstuhl wird in ca. 2 – 3 Wochen eingebracht und der Rohbau fertiggestellt.
    Energieeffizienz KfW 40
    degressive Abschreibung möglich

    WOHNUNG
    ZIMMER
    WOHNFLÄCHE
    PREIS
    STATUS
    AUSSTATTUNG
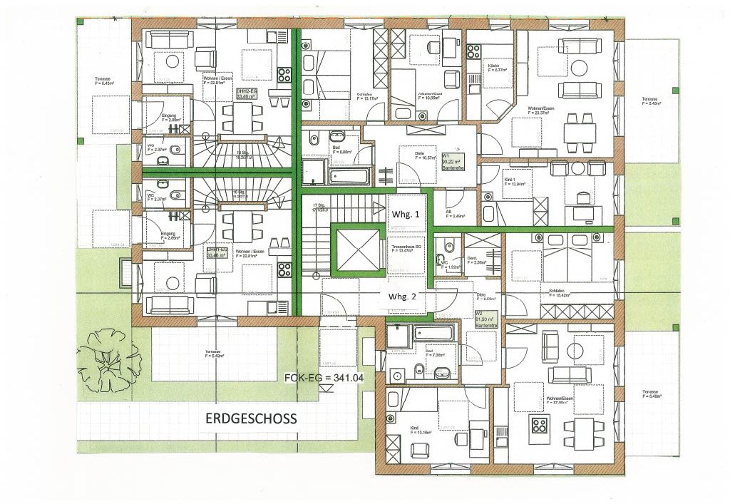
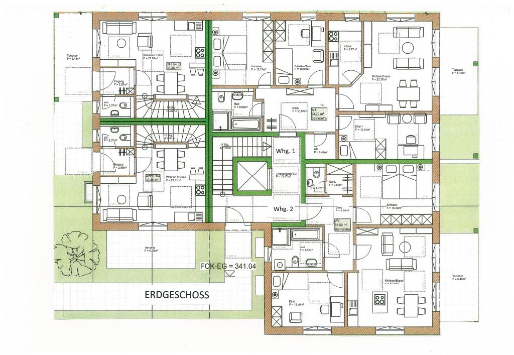
    Nr. 1 (EG) 4 Zi. ca. 100,50 m²  
     
    verkauft Terrasse
    Gartenanteil ca. 108 m²
    Nr. 2 (EG) 3 Zi. ca. 88,01 m² 501.657 €
    25.000 €
    frei Terrasse
    Gartenanteil ca. 135 m²
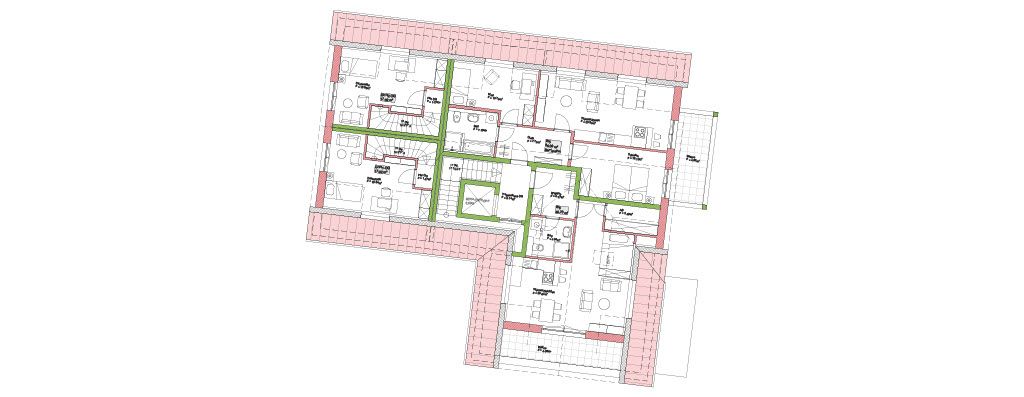
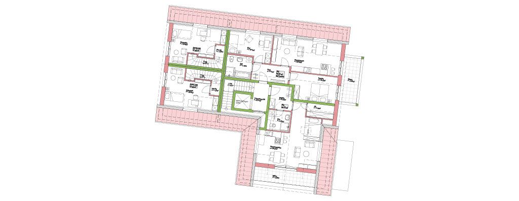
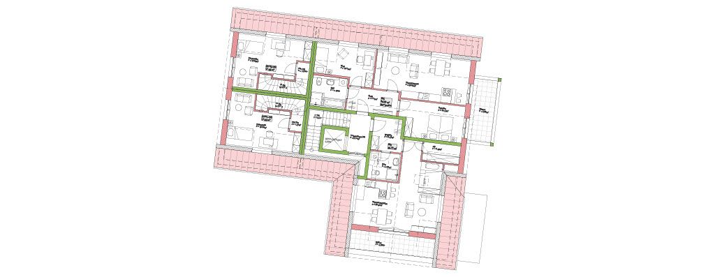
    Nr. 3 (OG) 4 Zi. ca. 93,50 m²   verkauft Balkon
    Nr. 4 (OG) 3 Zi. ca. 81,01 m²   verkauft Balkon
    Nr. 5 (DG) 3 Zi. ca. 69,23 m²   verkauft Balkon
    Nr. 6 (DG) 1 Zi. ca. 49,94 m²   verkauft Balkon
    Nr. 7 3 Zi. ca. 73,29 m²   verkauft  
    Nr. 8 3 Zi. ca. 73,28 m²   verkauft  

     

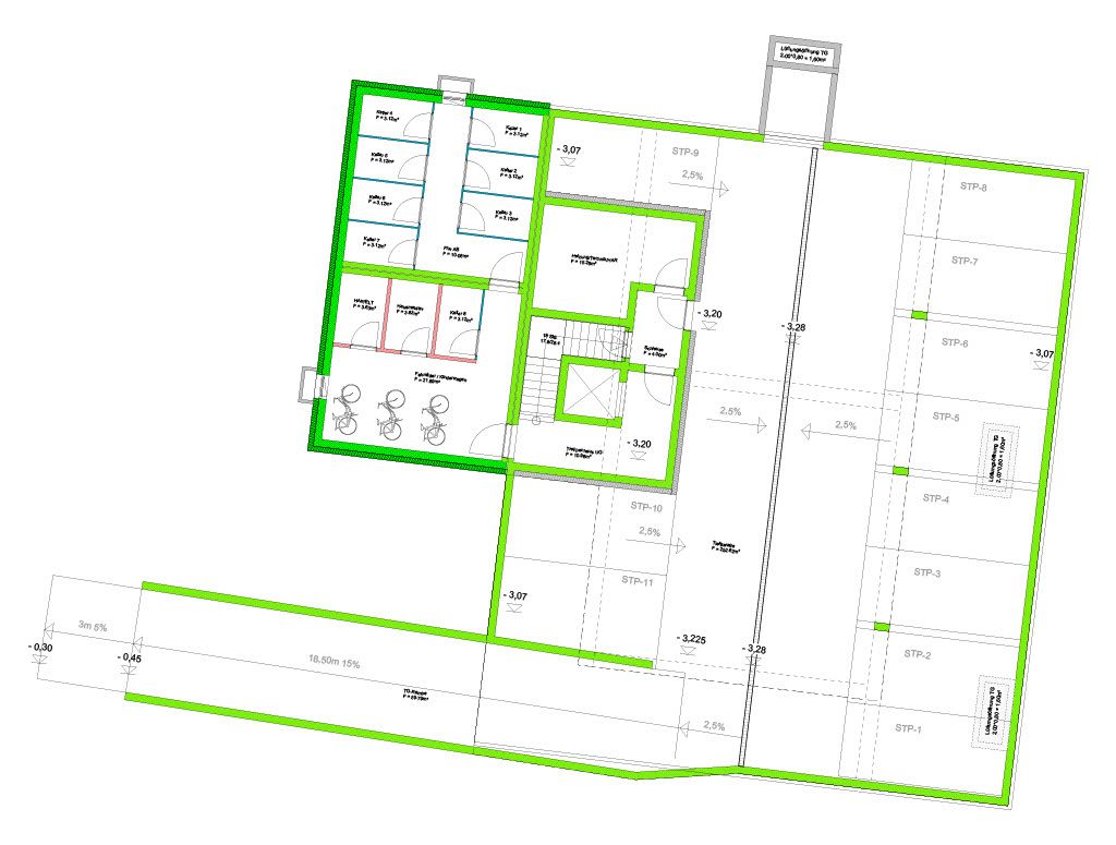
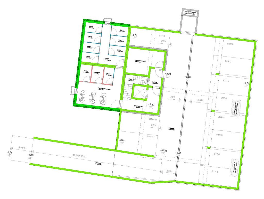
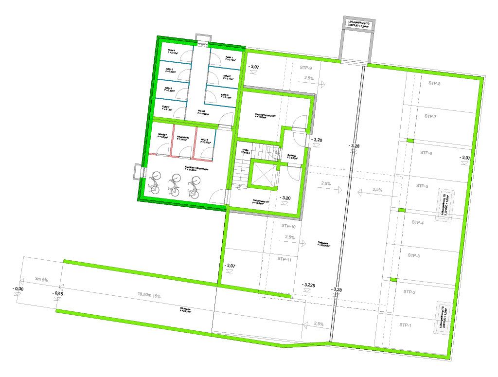
    Kaufpreis je Einzelstellplatz (TG) 26.000,00 €
    Kaufpreis je Aussenstellplatz 14.000,00 €

    Pro Wohnung 1-5 müssen zwei Stellmöglichkeiten gekauft werden.

    Für Wohnung 6 ein TG-Stellplatz.

     

    Im Kaufpreis enthalten:

    • Grundstück voll erschlossen
    • Hausanschlusskosten (Strom, Wasser, Kanal, Telekom)
    • Pro ETW ein Abstellraum im KG
    • Wärmepumpe als Heizungsanlage
    • Aufzug
    • Zugänge und Hofzufahrt gepflastert (Allgemeingrundstück)
    • Fahrradkeller

    Im Wohnungskaufpreis nicht enthalten:

    • Gärtnerische Anlage auf zugeteilten Gartenanteilen
    • Stellplatz/TG-Stellplatz
    • Gebäudeeinmessung

    Ausbaustand:

    • Bodenbeläge als Fliesen, Parkett und Laminat
    • Treppenhaus Granitbelag
    • Aufzug
    • Sichtdachstuhl
    • Lüftung pro Zimmer mit Wärmetauscher
    • Wärmepumpe

    Die Grundrisse der Wohnungen sind, nach technischer Abklärung, individuell abänderbar.
    Änderungen, Irrtümer und Druckfehler bleiben vorbehalten

    Stand: 18.06.2025