
Energieeffizienz KfW 40
degressive Abschreibung möglich
Lage: Ortszentrum
Baubeginn: 2025
Baufertigstellung: Anfang 2027
Bebauung: KG + EG + 1. OG + DG
WOHNUNG |
ZIMMER |
WOHNFLÄCHE |
PREIS |
STATUS |
AUSSTATTUNG |
---|---|---|---|---|---|
Nr. 1 ( UG ) (EG und KG ) |
4 Zi. | ca. 111,53 m² Wfl./Nfl. | 691.424 € | frei | inkl. Terrasse und Gartenanteil Südwest über 100 m² , 2 Bäder |
Nr. 2 ( UG ) (EG und KG ) |
4 Zi. | ca. 111,53 m² Wfl./Nfl. | 669.120 € | frei | inkl. Terrasse und Gartenanteil Südost über 100 m² , 2 Bäder |
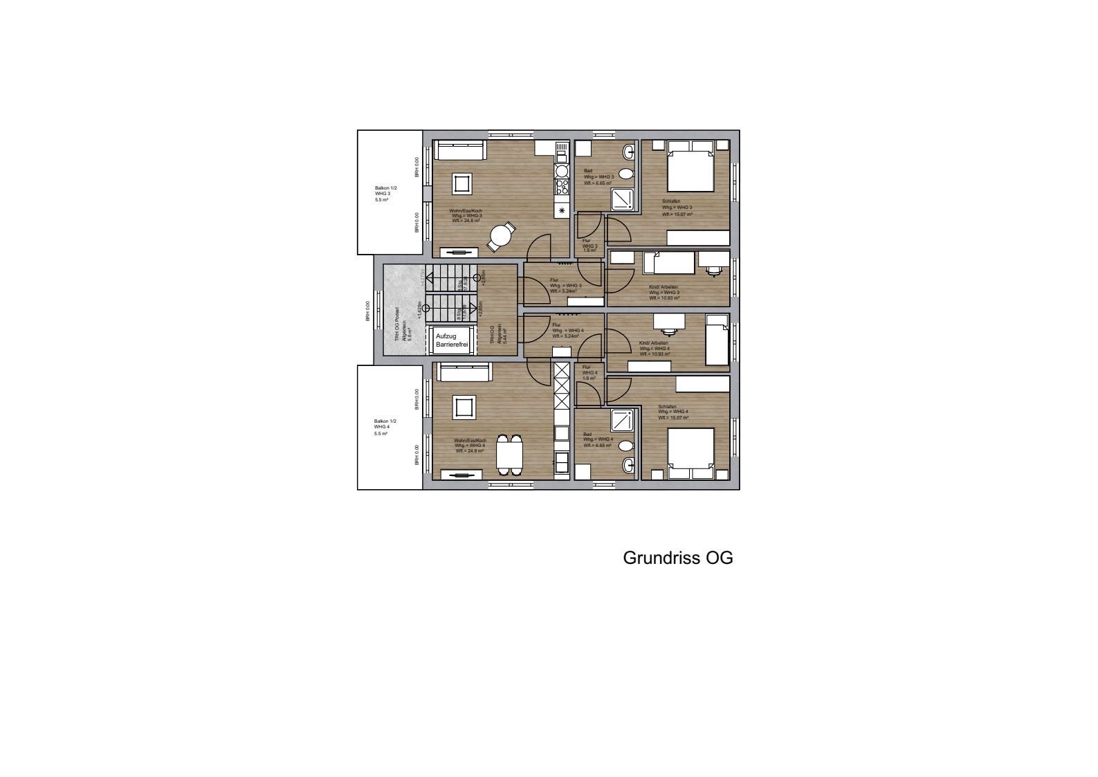
Nr. 3 ( 1.OG ) | 3 Zi. | ca. 70,09 m² | 468.665 € | frei | Balkon |
Alternativ | |||||
2 Zi. | ca. 59,02 m² | 399.860 € | frei | Balkon | |
Nr. 4 (1-OG) | 3 Zi. | ca. 70,09 m² | 454.675 € | frei | Balkon |
Alternativ | |||||
4 Zi. | ca. 79,73 m² | 534.191 € | frei | Balkon | |
Nr. 5 ( DG ) | 3 Zi. | ca. 69,11 m² | 475.893 € | frei | Balkon mit tollem Ausblick |
Nr. 6 ( DG ) | 3 Zi. | ca. 69,11 m² | 462.099€ | reserviert | Balkon mit tollem Ausblick |
Kaufpreis je Garage |
22.000 € | |
Kaufpreis je Carport |
17.000 € | |
Kaufpreis je Stellplatz |
14.000 € | |
Pro Wohnung müssen zwei Stellmöglichkeiten gekauft werden |
Im Kaufpreis enthalten:
- Grundstück voll erschlossen
- Hausanschlusskosten(Strom, Wasser, Kanal, Telekom)
- Wärmepumpe als Heizungsanlage
- Aufzug vom KG bis DG
- Zugänge und Hofzufahrt gepflastert ( Allgemeingrundstück )
Im Wohnungskaufpreis nicht enthalten:
- Gärtnerische Anlage auf zugeteilten Gartenanteilen
- Stellplatz / Garage
- Gebäudeeinmessung
Ausbaustand:
- Bodenbeläge als Fliesen und Parkett
- Lüftung pro Wohnraum mit Wärmetauscher
- Wärmepumpe als Heizungsanlage
- Fußbodenheizung
- Die Grundrisse der Wohnungen sind , nach technischer Abklärung , individuell abänderbar.
- Baugenehmigung erteilt.
- Durch Neubaugenehmigung QNG möglich .
Änderungen, Irrtümer und Druckfehler bleiben vorbehalten
Stand: 04.09.2025