
Lage: Zentrale Stadtlage
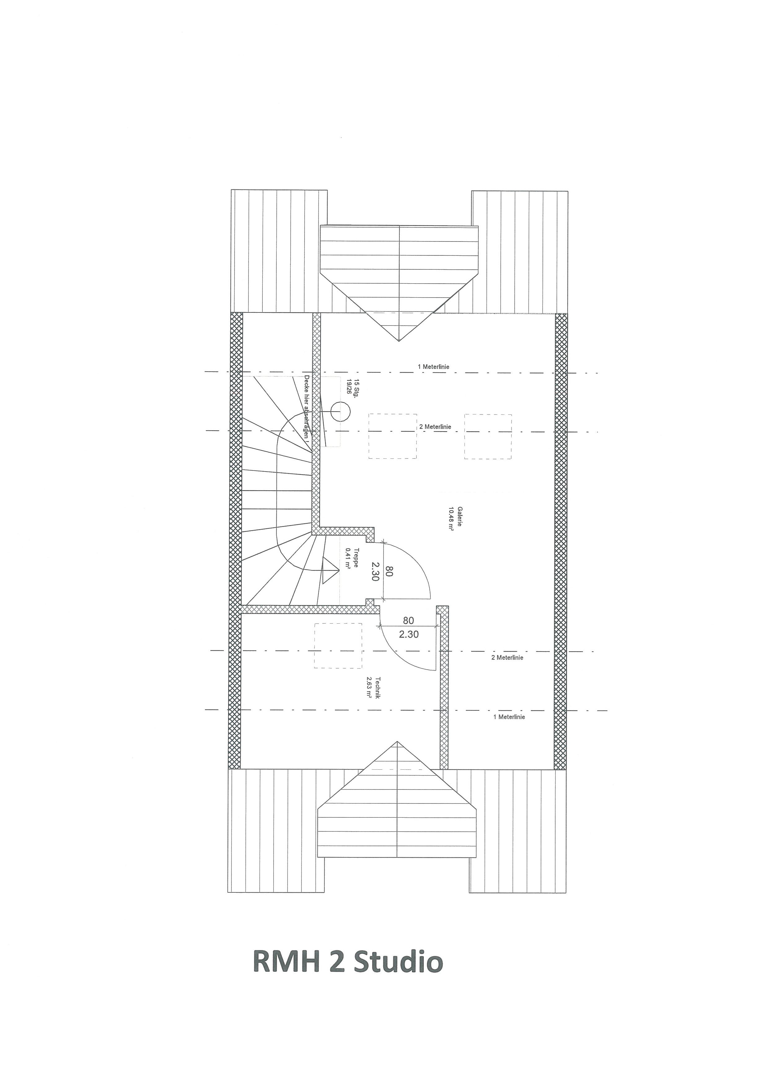
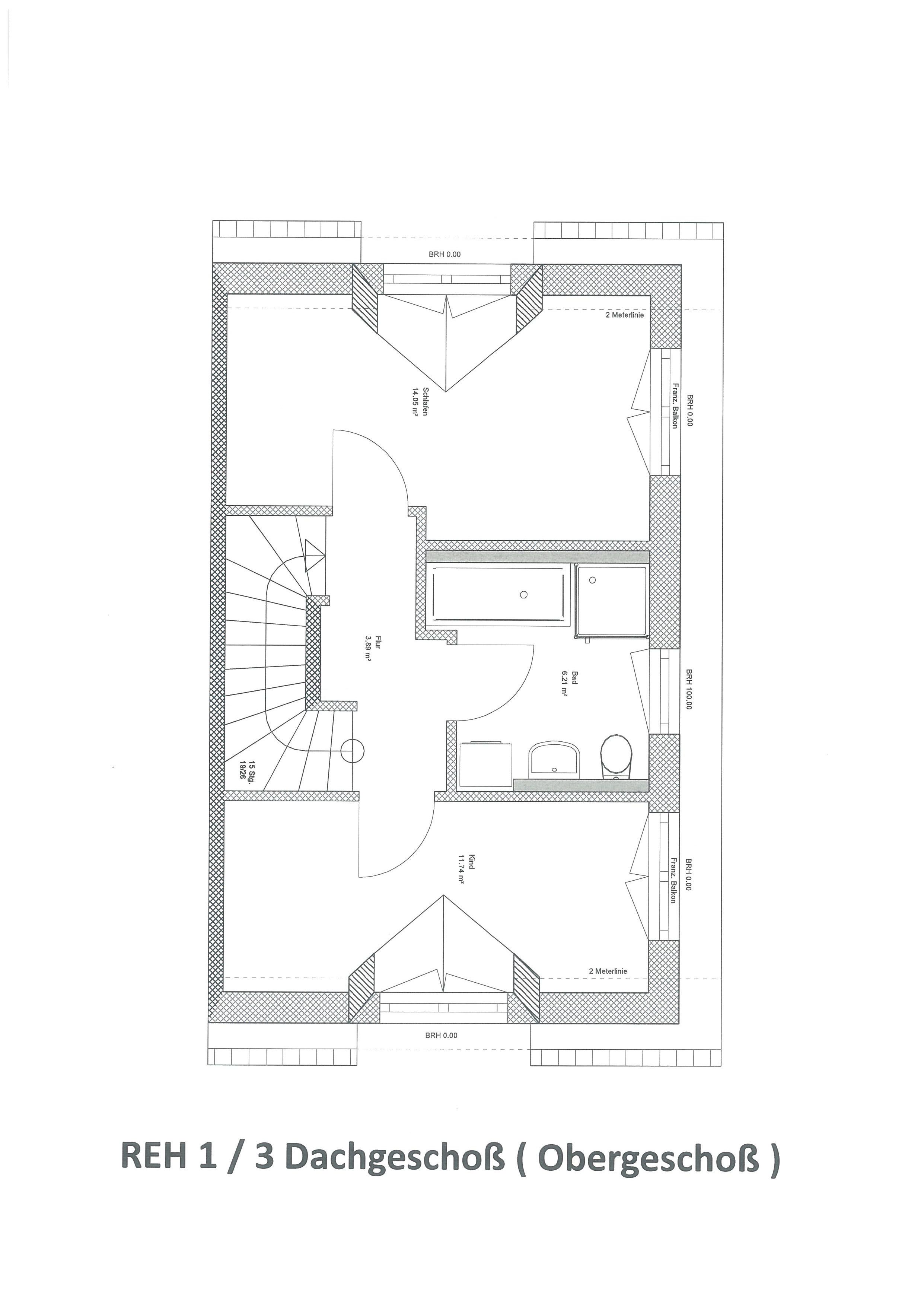
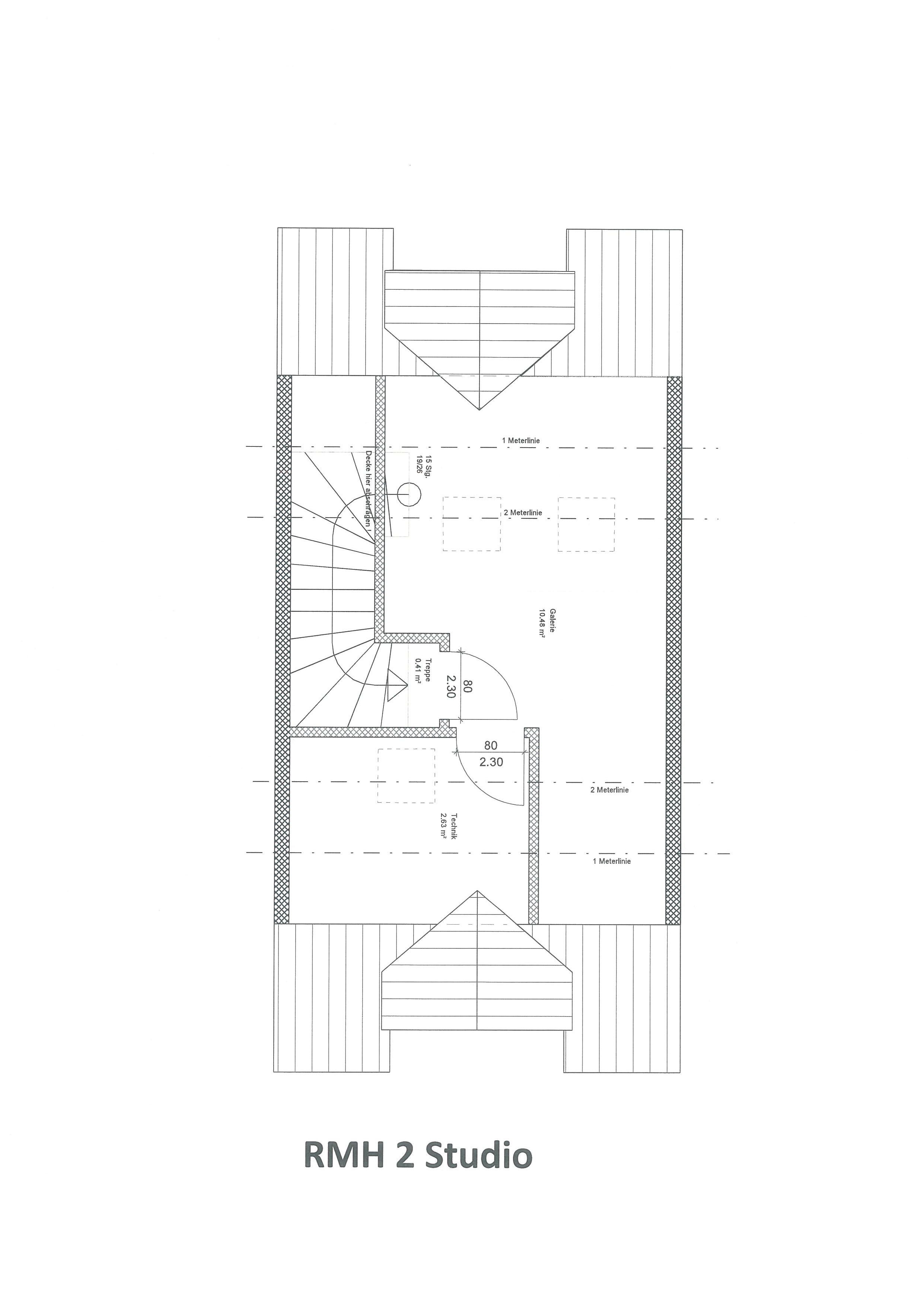
Bebauung: EG + DG + Studio
Energieeffizienz KfW 40
|
Grund ca. |
Zuwege und Wegeanteil |
Grundstücks-anteil gesamt |
Wohnfläche |
Zimmer |
Kaufpreis |
Status |
---|---|---|---|---|---|---|---|
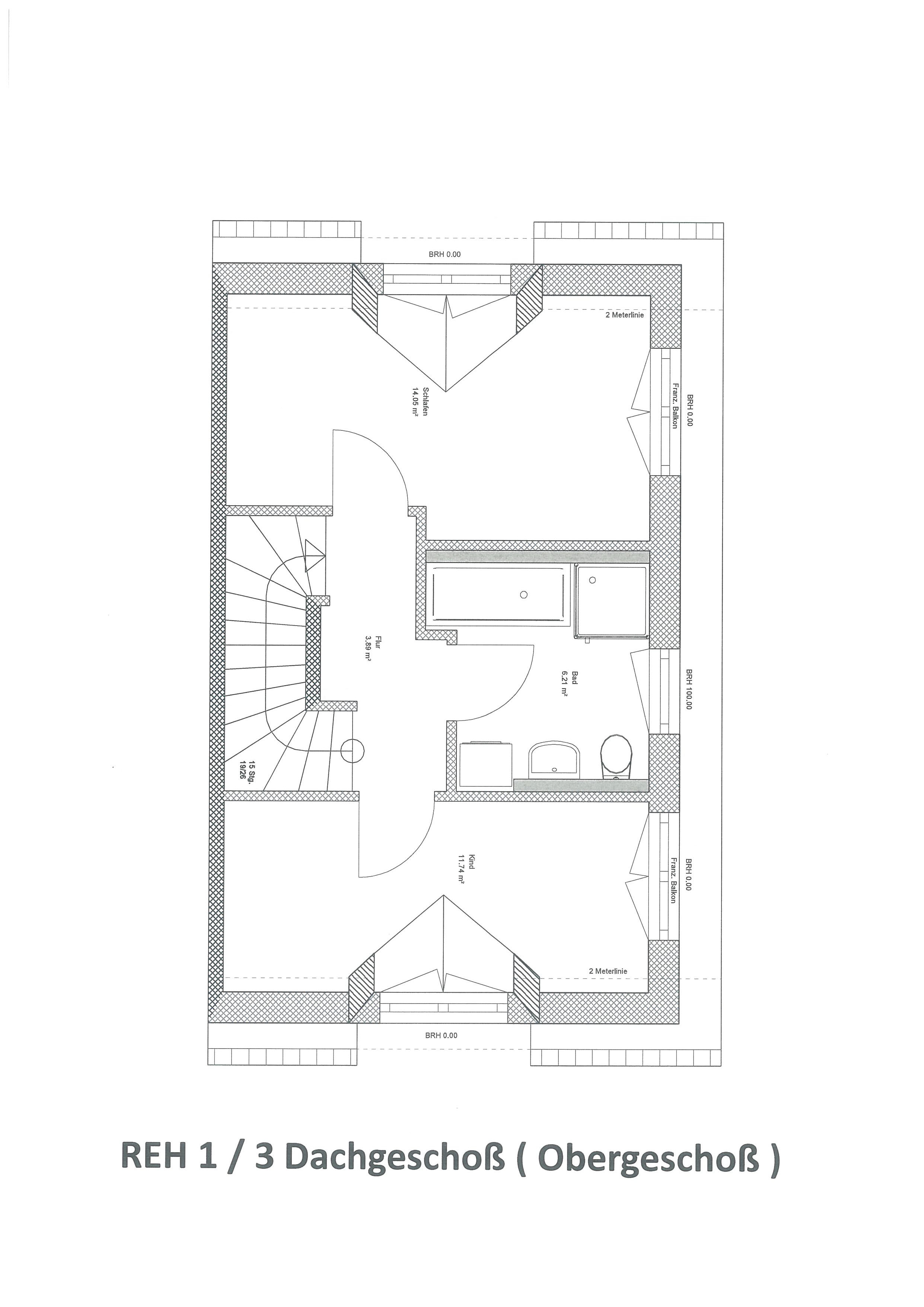
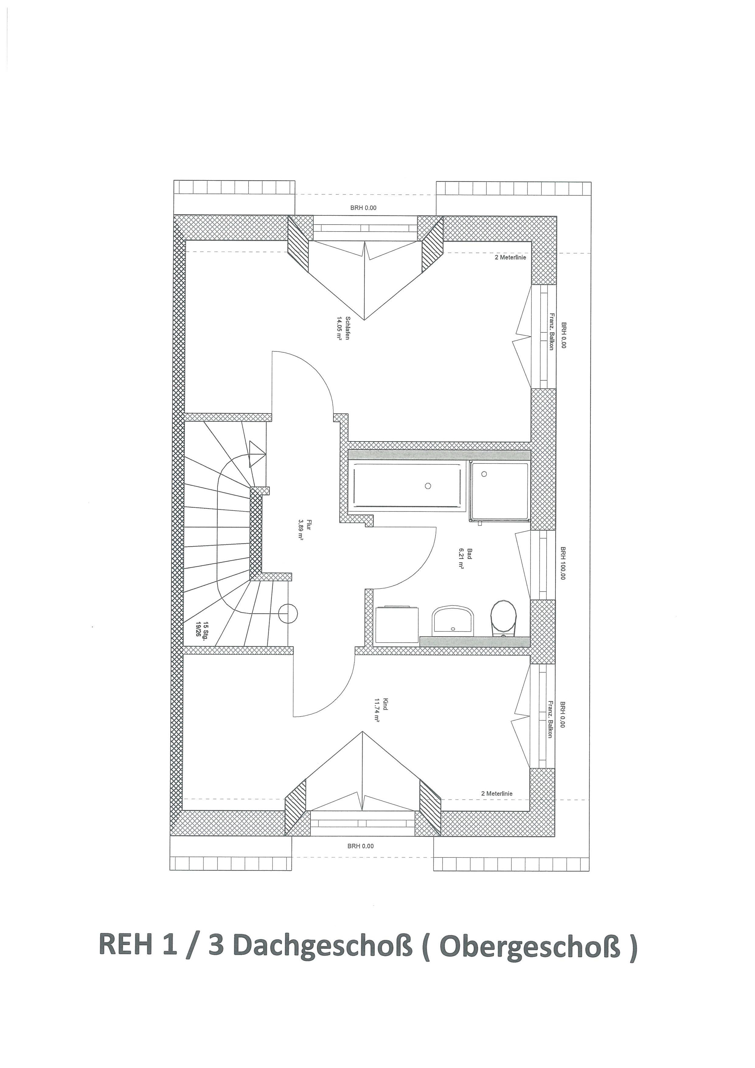
REH 1 | ca. 176 m² | ca. 60 m² | ca. 236 m² | ca. 100 m² | 5 Zi. | 499.900 € | frei |
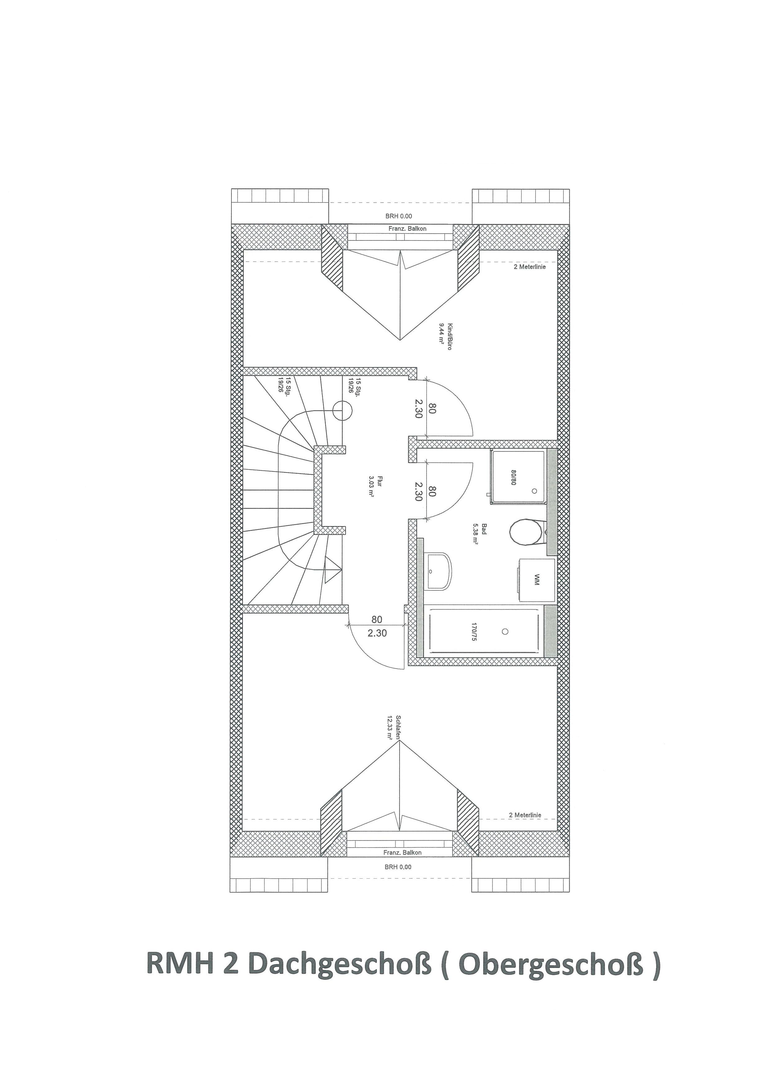
RMH 2 | ca. 72 m² | ca. 60 m² | ca. 132 m² | ca. 84 m² | 5 Zi. | 459.900 € | frei |
REH 3 | ca. 221 m² | ca. 60 m² | ca. 281 m² | ca. 100 m² | 5 Zi. | 529.900 € | frei |
Kaufpreis je Garage: 15.000 €
Kaufpreis je Stellplatz: 6.000 €
Im Kaufpreis enthalten:
- Grundstück voll erschlossen
- Abfuhr von überschüssiger Erde
- Grobplanie
- Hausanschlusskosten (Strom, Wasser, Kanal, Telekom)
- Erstmalige Erschließungskosten
- Herstellen der internen Zufahrten
- Zuwegung zum Haus
- Teilungsmessung
- Terrasse
Im Hauskaufpreis nicht enthalten:
- Gärtnerische Anlage / Humusierung auf eigenem Hausgrundstück
- Garage /Stellplatz
- Gebäudeeinmessung
- Einfriedung (Zaun)
Ausbaustand schlüsselfertig:
- Bodenbeläge als Fliesen, Parkett und Laminat
- Sichtdachstuhl
- 5 kw Photovoltaikanlage ohne Speicher
- freitragende Holztreppe vom DG ins Studio
- betonierte Treppe mit Fliesenbelag vom EG ins DG
- Fußbodenheizung
- Wärmepиmpе
- bedarfsgeführte Lüftungsanlage
Eigenleistungen möglich.
Änderungen, Irrtümer und Druckfehler bleiben vorbehalten
Stand: 07.08.2025